ДОМ ИЗ 4 МОДУЛЕЙ №846

Цена строительства от 8 150 000 ₽* * Стоимость не является окончательной
Заявка на консультацию
  • Общая площадь 79 м2
  • Длина 6.6 м
  • Ширина 12 м
  • Материал стен Каркас
  • Количество этажей 1
  • Подвал Нет
  • Мансарда без мансарды
  • Гараж Нет
  • Терраса Да
  • Проживание Круглогодичное
  • Количество комнат 3
  • Количество спален 2
  • Количество санузлов 1
  • Вид проекта дом
  • Застройщик КедрКэмп
  • Архитектурный стиль Современный
  • Отделка фасада Обшивка деревом
  • Крыша Плоская
  • Можно купить домокомплект Нет
  • Модульный тип строения Да
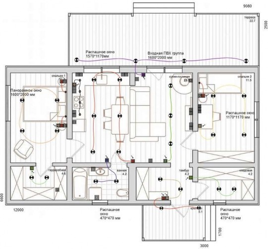
Планировки
Описание проекта

Пространство дома объединяет кухню и гостиную, есть одна большая

спальная комната и две комнаты 7,9 м2.

Подойдет для отдыха или постоянного проживания семьи. Одну комнату можно переделать в кабинет.

ДОПОЛНИТЕЛЬНЫЕ УСЛУГИ ПОДРЯДА по Новосибирску:

• Свайный фундамент

• Доставка и кран

• Септик

• Подвод воды и электричества

Выбор местоположения

Задать вопрос / написать нам

E-mail: domgis@mail.ru

Мы свяжемся с Вами в течение дня.

Тех. поддержка
Предмет обращения:
Тукущая страница

Мы свяжемся с Вами в течение дня.

Уведомление
Предмет обращения:
Тукущая страница
Обратный звонок
Обратный звонок
Выберите ваш город
Пожаловаться

Объявление опубликовано.
Изменения сохранены

Период публикации - бессрочный, при условии подтверждения актуальности каждые 50 дней. Уведомления будут отправляться на Вашу электронную почту.

Выберите причину снятия с публикации

Снятые с публикации объявления не участвуют в поиске и недоступны для подробного просмотра.

Для повторной публикации нажмите «Вернуть в публикацию»